Hiện tòa CT7 đã cất nóc, đang trong quá trình hoàn thiện và dự án kiến đón khách tham quan vào trung tuần tháng 6 này. Tòa CT4 đang được gấp rút hoàn thiện. Dưới đây là một số hình ảnh chúng tôi lưu lại. Xem thêm thông tin các căn hộ CT7 (chuẩn […]
Monthly Archives: Tháng 5 2017
Mặt bằng Căn hộ loại F diện tích 107,35m2, thiết kế 3 phòng ngủ, 2wc tòa CT7 chung cư quốc tế Booyoung Vina Mỗ Lao. Xem thêm các loại căn hộ >> Căn hô loại A diện tích 73,31m2, thiết kế 2 phòng ngủ, 2wc >> Căn hô loại B diện tích 74.35m2, thiết kế 2 phòng […]
Mặt bằng Căn hộ loại C diện tích 95,54m2, thiết kế 3 phòng ngủ, 2wc tòa CT7 chung cư quốc tế Booyoung Vina Mỗ Lao. Xem thêm các loại căn hộ >> Căn hô loại A diện tích 73,31m2, thiết kế 2 phòng ngủ, 2wc >> Căn hô loại B diện tích 74.35m2, thiết kế 2 phòng […]
Mặt bằng Căn hộ loại C diện tích 88,55m2, thiết kế 3 phòng ngủ, 2wc tòa CT7 chung cư quốc tế Booyoung Vina Mỗ Lao. Xem thêm các loại căn hộ >> Căn hô loại A diện tích 73,31m2, thiết kế 2 phòng ngủ, 2wc >> Căn hô loại B diện tích 74.35m2, thiết kế 2 phòng […]
Mặt bằng Căn hộ loại B Diện tích 74,35m2, thiết kế 2 phòng ngủ, 2wc tòa CT7 chung cư quốc tế Booyoung Vina Mỗ Lao. Xem thêm các loại căn hộ Căn hô loại A diện tích 73,31m2, thiết kế 2 phòng ngủ, 2wc Căn hô loại C: diện tích 88,55m2, thiết kế 3 phòng […]
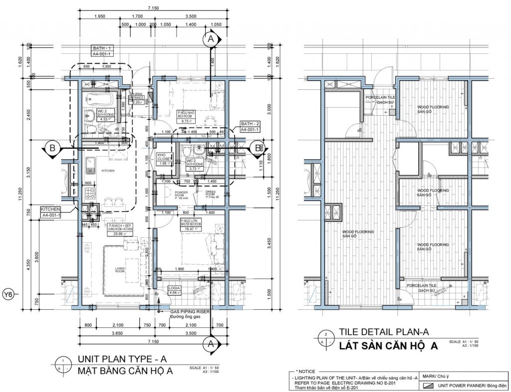
Mặt bằng Căn hô loại A Diện tích 74m2, thiết kế 2 phòng ngủ, 2wc tòa CT7 chung cư quốc tế Booyoung Vina Mỗ Lao. Xem thêm các loại căn hộ Căn hô loại B: diện tích 74.35m2, thiết kế 2 phòng ngủ, 2wc Căn hô loại C: diện tích 88,55m2, thiết kế 3 phòng […]
Viko City Phổ Yên Thái Nguyên (Tên cũ: Đất nền Hồng Long Thái Nguyên) tọa lạc trên “mảnh đất vàng” Phổ Yên – Cửa ngõ phía Nam tỉnh Thái Nguyên, tiếp giáp Thủ đô Hà Nội – luôn là nơi đón đầu những thời cơ, vận hội mới. Nơi đây nắm giữ vai trò đặc […]
Khu đô thị Dương Nội có diện tích 200 hecta do tập đoàn Nam Cường làm chủ đầu tư. Là một đô thị nổi bật phía Tây Hà Nội, khu đô thị Dương Nội sở hữu nhiều lợi thế mà các đô thị khác không có. Bên cạnh đó, chủ đầu tư uy tín cũng là […]
Ảnh tiến độ thi công tòa chung cư CT7 và tòa CT4 thuộc Khu chung cư quốc tế Booyoung Vina tại Mỗ Lao, Hà Đông, Hà Nội. Xem thêm căn hộ mẫu tại đây CT7 đã hoàn thành 80% khối lượng công việc CT7 đã hoàn thành 80% khối lượng công việc CT4 […]
Với địa thế bằng phẳng, vị trí thuận lợi, cơ sở hạ tầng cửa ngõ phía Tây liên tục được nâng cấp và đầu tư đồng bộ theo định hướng phát triển của thủ đô. Các công trình công cộng, công trình phụ trợ đã đi vào hoạt động, sự mở rộng các dự án […]
- 1
- 2










